NYDC Showroom at 200 Lex

Design-forward brand presence meets functional spacial storytelling for Astek’s East Coast Expansion at the New York Design Center.

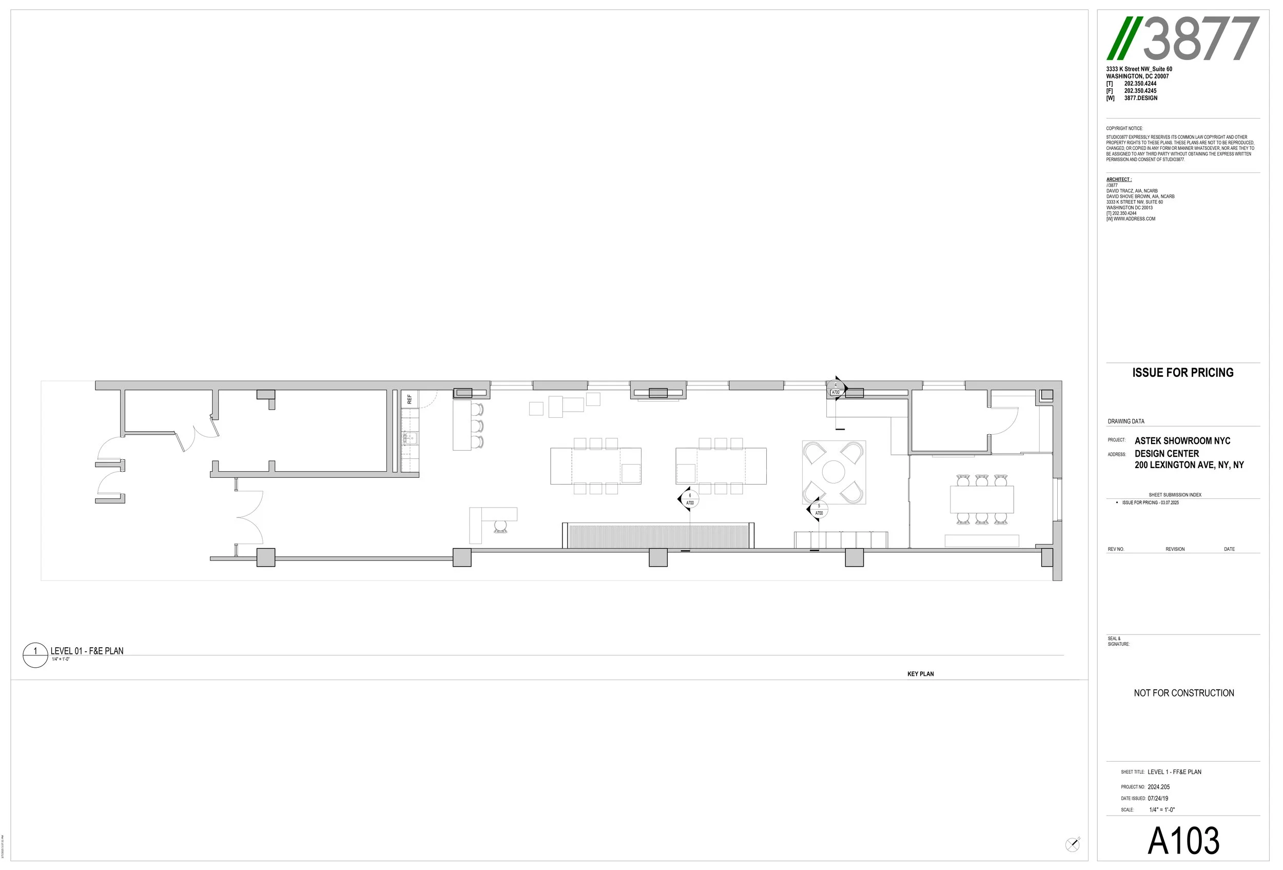
I led the creative direction for Astek’s NYC showroom from concept to completion, overseeing every detail of the process to ensure the space reflected Astek’s brand, products, and growth strategy. From identifying the right location at the New York Design Center to curating the floorplan, furniture, and final presentation, the goal was to create an environment that felt both refined and creatively raw: a space that invited engagement while putting Astek’s wallcovering collections at the center.

I collaborated with design firm Studio 3877 to refine the architectural layout and millwork features. Together, we developed multifunctional display tables, a 20 foot wall of rotating product wings, and custom shelving solutions to showcase Astek’s expansive collection library. I edited and approved all FF&E selections to ensure cohesion with Astek’s brand language: neutral palettes, concrete floors, and industrial touches that allowed the product to remain the visual focus.

To launch the space, I traveled to New York ahead of opening to oversee installation and complete the finishing details. From styling the walls with curated murals to organizing sample trays and designing a dimensional entry wall for Astek’s latest release, the final environment was immersive, flexible, and unmistakably Astek. The showroom debuted in tandem with ICFF 2025, reinforcing Astek’s presence on the East Coast and establishing a permanent, design-forward home in the heart of the interiors industry.

Take a look inside Astek’s showroom at 200 Lex in the New York Design Center.

Let’s chat.

Contact
Next
Next

Motion-based Booth Experience